Ãæ¸Å½»Âð > ÀÐÀÀÐÀî·´Ì»ÔÄ®²¡±Û1ÃúÌÜ
¤´À®Ì󤢤꤬¤È¤¦¤´¤¶¤¤¤Þ¤·¤¿¡£
¾®Ãæ³Ø¹»¡¢¥¹¡¼¥Ñ¡¼¤¹¤Ù¤ÆÅÌÊâ10ʬ·÷Æâ¤Î¹¥Î©ÃÏ¡ª
ÃÛ11ǯ·úÃÛ»þ2,000Ëü±ß¤Î¤³¤À¤ï¤êÍÎÉ÷½»Âð¤Ç¤¹¡£

¾®Ãæ³Ø¹»¡¢¥¹¡¼¥Ñ¡¼¤¹¤Ù¤ÆÅÌÊâ10ʬ·÷Æâ¤Î¹¥Î©ÃÏ¡ª
ÃÛ11ǯ·úÃÛ»þ2,000Ëü±ß¤Î¤³¤À¤ï¤êÍÎÉ÷½»Âð¤Ç¤¹¡£

ʪ·ï³µÍסÊÅÚÃÏ¡Ë
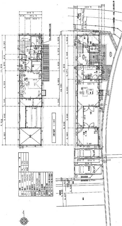
ÌÌÀÑ 145.00Ö[43.86ÄÚ]
ÍÑÅÓÃϰè Âè1¼ï½»µï
·ú¤Ú¤¤Î¨ 60¡ó
ÍÆÀÑΨ 200¡ó
´Ö¸ý Ìó---£í
ƻϩÉý ---£í
¸òÄÌ ²¡±Û¥Ð¥¹Ää¤è¤êÅÌÊâ6ʬ
³Ø¶è ¸æ±à¾®/ÉÛ¿åÃæ
ʪ·ï³µÍסʷúʪ¡Ë
·úÃÛǯ·îÆü 1996/12
¹½Â¤ ÌÚ¤Æó³¬·ú¤Æ
±ä¾²ÌÌÀÑ 115.19Ö
Éô²°¿ô 3K
Ãó¼Ö 2Âæ
Ééô¶â 0Ëü±ß
¼þÊÕÃϿޤϤ³¤Á¤é

ÌÌÀÑ 145.00Ö[43.86ÄÚ]
ÍÑÅÓÃϰè Âè1¼ï½»µï
·ú¤Ú¤¤Î¨ 60¡ó
ÍÆÀÑΨ 200¡ó
´Ö¸ý Ìó---£í
ƻϩÉý ---£í
¸òÄÌ ²¡±Û¥Ð¥¹Ää¤è¤êÅÌÊâ6ʬ
³Ø¶è ¸æ±à¾®/ÉÛ¿åÃæ
ʪ·ï³µÍסʷúʪ¡Ë
·úÃÛǯ·îÆü 1996/12
¹½Â¤ ÌÚ¤Æó³¬·ú¤Æ
±ä¾²ÌÌÀÑ 115.19Ö
Éô²°¿ô 3K
Ãó¼Ö 2Âæ
Ééô¶â 0Ëü±ß
¼þÊÕÃϿޤϤ³¤Á¤é











