¿·ÃÛ½»Âð > ÀÐÀ¶âÂô»Ô¤·¤¸¤ÞÂæ2ÃúÌÜ
ʪ·ï³µÍסÊÅÚÃÏ¡Ë
ÌÌÀÑ 157.62Ö[47.68ÄÚ]
ÍÑÅÓÃϰè Âè1¼ï½»µï
·ú¤Ú¤¤Î¨ 50¡ó
ÍÆÀÑΨ 80¡ó
´Ö¸ý 7.5£í
ƻϩÉý ËÌ9.0£í
¸òÄÌ ËÌÅ´¤·¤¸¤ÞÂæ¥Ð¥¹Ää¡¡ÅÌÊâ3ʬ
³Ø¶è »Í½½Ëü¾®/³ÛÃæ
ʪ·ï³µÍסʷúʪ¡Ë
·úÃÛǯ ¿·ÃÛ
¹½Â¤ ÌÚ¤Æó³¬·ú¤Æ
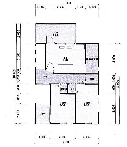
±ä¾²ÌÌÀÑ 109.90Ö
Éô²°¿ô 4LDK
Ãó¼Ö 3Âæ
Ééô¶â ¾å²¼¿åÆ»63Ëü±ß
È÷¹Í¡¡¥×¥é¥óÊѹ¹²Ä
¼þÊÕÃϿޤϤ³¤Á¤é













