¿·ÃÛ½»Âð > ÀÐÀ¶âÂô»ÔÂÀÍÛ¤¬µÖ
¤´À®Ì󤢤꤬¤È¤¦¤´¤¶¤¤¤Þ¤·¤¿¡£
ÅΤÎΤ¤Þ¤Ç¼Ö¤Ç5ʬ¡£´×ÀŤʽ»Â𳹤Ǥ¹¡£¥ê¥Ó¥ó¥°¡¢Ï²¼¤ÏÅ·Á³ÂçÍýÀÐŽ¤ê¤Ç¤¹¡£

ÅΤÎΤ¤Þ¤Ç¼Ö¤Ç5ʬ¡£´×ÀŤʽ»Â𳹤Ǥ¹¡£¥ê¥Ó¥ó¥°¡¢Ï²¼¤ÏÅ·Á³ÂçÍýÀÐŽ¤ê¤Ç¤¹¡£

ʪ·ï³µÍסÊÅÚÃÏ¡Ë
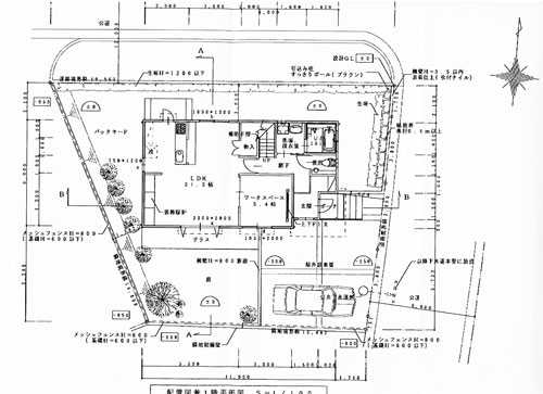
ÌÌÀÑ 221.00Ö[66.85ÄÚ]
ÍÑÅÓÃϰè Âè1¼ïÄãÁؽ»µï
·ú¤Ú¤¤Î¨ 50¡ó
ÍÆÀÑΨ 80¡ó
´Ö¸ý Ìó ---£í
ƻϩÉý Åì Ìó 6£í¡¡¡¡À¾ Ìó 12£í
¸òÄÌ ËÌÅ´ÂÀÍÛ¤¬µÖ¥Ë¥å¡¼¥¿¥¦¥ó¥Ð¥¹Ää¡¡ÅÌÊâ6ʬ
³Ø¶è Åľ微/·óÏ»Ãæ
ʪ·ï³µÍסʷúʪ¡Ë
·úÃÛǯ 2005ǯ
¹½Â¤ ÌÚ¤Æó³¬·ú¤Æ
±ä¾²ÌÌÀÑ 122.25Ö
Éô²°¿ô 4LDK
Ãó¼Ö 2Âæ
Ééô¶â 65Ëü±ß
¼þÊÕÃϿޤϤ³¤Á¤é












