¿·ÃÛ½»Âð > ÀÐÀ¶âÂô»ÔÂÀÍÛ¤¬µÖ
ʪ·ï³µÍסÊÅÚÃÏ¡Ë
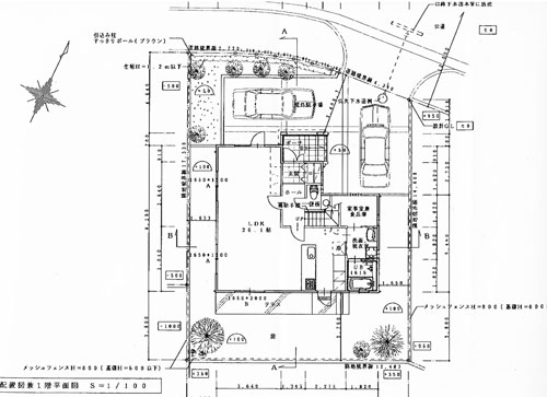
ÌÌÀÑ 206.00Ö[62.31ÄÚ]
ÍÑÅÓÃϰè Âè1¼ïÄãÁؽ»µï
·ú¤Ú¤¤Î¨ 50¡ó
ÍÆÀÑΨ 80¡ó
´Ö¸ý Ìó 12.6£í
ƻϩÉý ËÌ Ìó 12£í
¸òÄÌ ËÌÅ´ÂÀÍÛ¤¬µÖ¥Ë¥å¡¼¥¿¥¦¥ó¥Ð¥¹Ää¡¡ÅÌÊâ6ʬ
³Ø¶è Åľ微/·óÏ»Ãæ
ʪ·ï³µÍסʷúʪ¡Ë
·úÃÛǯ 2005ǯ
¹½Â¤ ÌÚ¤Æó³¬·ú¤Æ
±ä¾²ÌÌÀÑ 123.55Ö
Éô²°¿ô 3LDK
Ãó¼Ö 2Âæ
Ééô¶â 65Ëü±ß
¼þÊÕÃϿޤϤ³¤Á¤é













