不動産売買・賃貸・仲介 ビーシステム

石川県金沢市近郊の不動産ならお任せください!
新築物件・中古物件・売り土地・賃貸マンション・アパートお探しします。

石川県知事(1)第3742号
(社)石川県宅地建物取引業協会会員
(社)全国宅地建物取引業保証協会会員

[ 新築住宅 ]  [ 中古住宅 ]  [ 賃貸物件 ]  [ 売り土地 ]  [ トップページ ]

ビーシステム不動産情報をご覧いただきありがとうございます。 掲載されている情報以外にも魅力的な物件を多数ご用意しています。ご予算、ご希望、ぜひお気軽にご相談下さい。

新築住宅 > 石川県金沢市太陽が丘

3180万円<仲介> 価格改定しました(5/12)

杜の里まで車で5分。閑静な住宅街です。リビング、廊下は天然大理石貼りです。

新築住宅 > 石川県金沢市太陽が丘 外観
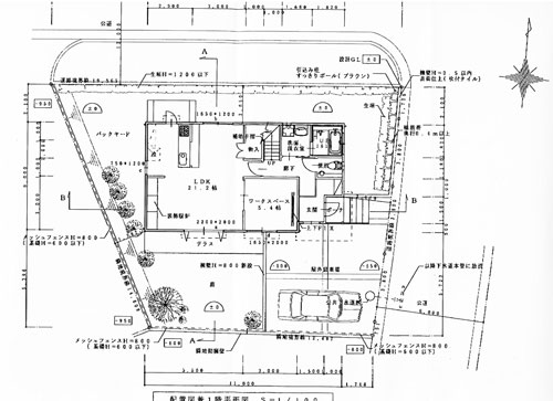
間取り図

新築住宅 > 石川県金沢市太陽が丘 一階間取り図

新築住宅 > 石川県金沢市太陽が丘 二階間取り図

ビーシステム お問い合わせダイヤル 076-280-2115
物件を実際に見てみたい、詳しい話を聞きたいなど、お気軽にお問い合わせ下さい。

(C) Copyright 2004-2005 Besystem All rights reserved. 掲載記事・画像の無断転載禁止

[ PR ] 炭専門店 タンタンドウ